2005-11-25 作者: 來(lai)源:caxa
![]() |
| 企業產品生產基本流程 |
我公司每年用戶定制產品占全年銷售收入的20~30%左右;而定制產品需要根據用戶工況進行變型設計,加上新品開發任務,技術部門的設計制圖、工藝編制等任務相當繁重。由于近幾年新產品開發項目較多,用戶定制開發產品量大,因此開發設計和工藝編制等任務相當繁重,年出設計圖在8000張以上,工藝圖表1.4萬張以上。
我公司現有技術人員三十余人,其中80%具有大專以上文化或中級以上專業技術職稱,新進技術人員近幾年以4~5人/年的速度增加。但是存在新進技術員CAD、CAPP軟件應用水平不高以及圖紙資料管理不便等問題,同時需要對設計開發過程進行規范管理、流程優化以及建立知識庫或知識中心,提高設計開發水平等。
目前,我公司有CAXA軟件:35節點CAXA電子圖板2005企業版、5節點CAXA實體設計2005網絡版、3套CAXA電子圖板2005單機版、2套CAXA電子圖板XP 、15節點CAPP工藝圖表網絡版。
![]() |
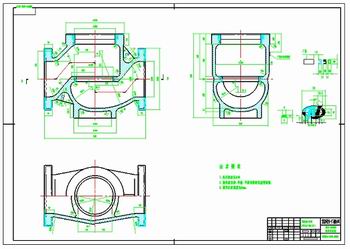
| 使用CAXA電子圖板設計的零件圖 |
![]() |
| 使用CAXA電子圖板設計的裝配圖 |
![]() |
| 使用CAXA實體設計繪制的零件圖 |
![]() |
| 使用CAXA工藝圖表編制的工藝文件 |
我公司原有工程師由CAXA負責培訓,新進大學生在學校已通過CAXA的培訓認證,未使用過CAXA軟件的大學生,通過自己摸索和部門內部培訓兩周內掌握,現有32名技術人員,除2名電子工程師外,機械工程技術人員全部使用CAXA軟件并能熟練應用,利用圖庫等既有資料縮短設計(特別是制圖)時間30%以上。
技術部門在使用CAXA幾年來,效率不斷提高,使用CAXA電子圖板以前,人均出圖0.5張(A4)/日左右,現在年出圖量近萬張,提高效率60%左右。2000年用戶定制產品總額僅100萬元左右,占總銷售收入的10%不到,2005年,用戶定制產品總額將突破1000萬元,占總收入的15%之多。2002年~2005年,新產品開發總量與建廠到2001年三十年間的總和相當。
從1997年開始,我單位就是CAXA的正版用戶,八年來,我們與CAXA不斷合作,而CAXA軟件也促進我公司CAD水平不斷提高,同時也促進了我公司的信息化建設進程。企業從1999年虧損30余萬元,通過幾年不斷的改革和技術革新,現在年利潤達800多萬元,技術的發展為企業發展奠定基礎,而CAXA軟件是我們技術發展中的重要支持者之一。
CAXA軟件應用效果評價
CAXA軟件易學易用,功能豐富,適合本公司的產品
CAXA軟件價格適中,符合中國國情,是我公司企業信息化建設的重要組成部分
CAXA產品覆蓋面廣,在制造業方面又有突出特色,適合于制造業選用
CAXA的CAD產品與其它CAD產品兼容性好,而且在中國的使用面很廣,非常方便我公司與客戶之間的技術交流
與CAXA的合作展望
在現有CAXA實體設計軟件使用取得更好成效后,我們將在設計部門全面推行三維設計理念。由于我公司進入核電儀表領域的需要,我們在應力分析、有限元分析等方面的軟件需求,我們很高興看到CAXA實體設計2006為用戶免費提供集成的有限元分析模塊Algor,CAXA實體設計2006軟件實現了CAD/CAE無縫集成。而且目前我公司正在實施企業信息化建設項目,由于CAXA軟件良好的兼容性和數據共享性,我們將與CAXA繼續合作,早日完成企業信息化建設。